For Sale - 1901 Broadway - The Lyon Building
Owner-User or Investment Opportunity in Uptown Oakland
Positioned at the prominent corner of Broadway and 19th Street, the Lyon Building is an iconic early-20th-century property that blends historic architectural character with the creative energy of Uptown Oakland.
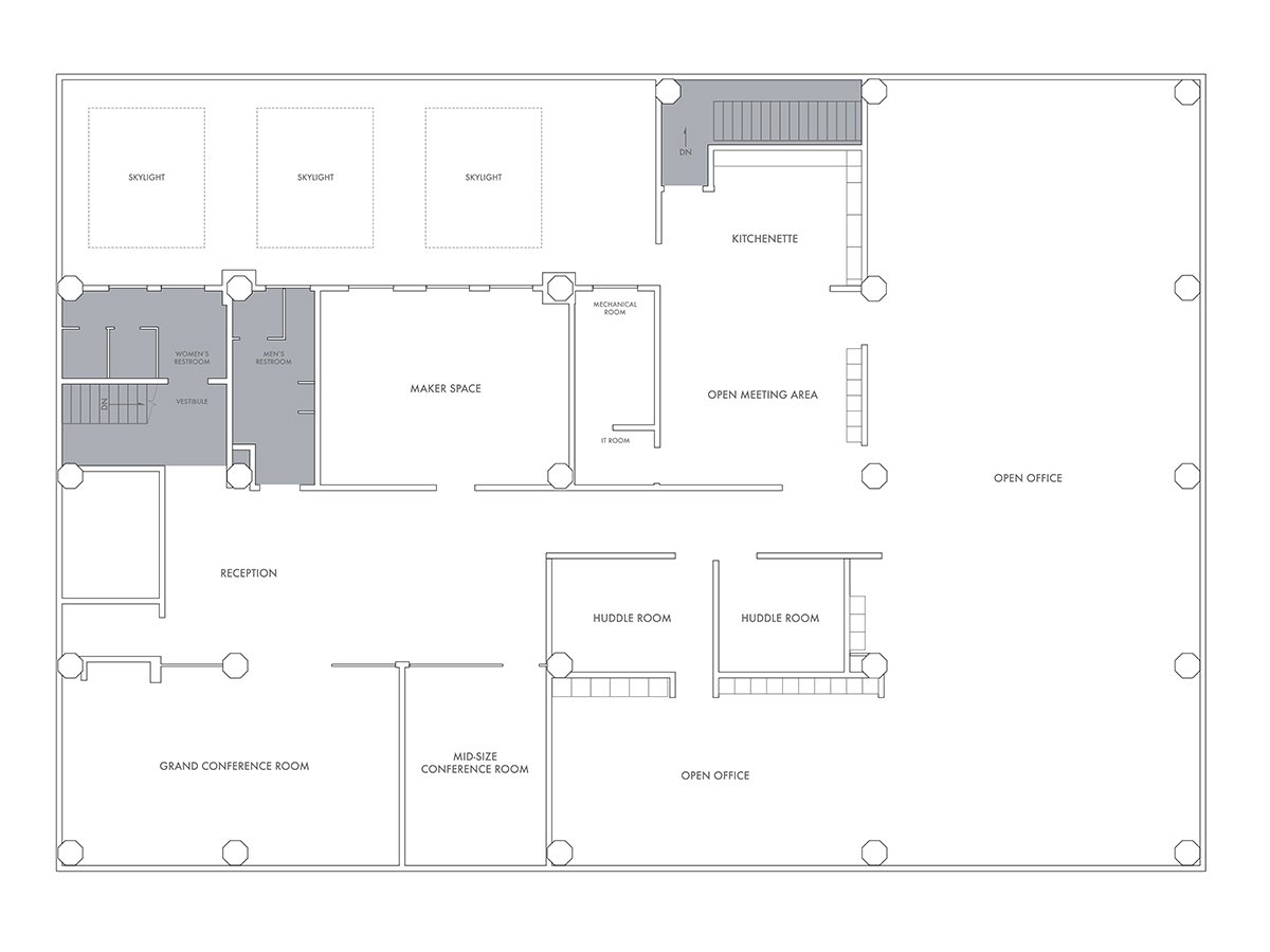
The ±5,670 square foot parcel is improved with a ±17,560 square foot multi-level building featuring flexible office and retail spaces suited for creative, collaborative, or traditional uses.
The property includes:
±5,480 SF ground floor plus ±1,450 SF mezzanine)
±4,870 SF of second-floor office space
±5,760 SF full basement level
Both the first and second floors are built out with high-quality finishes and configured for flexible, creative workspace.
The site offers excellent visibility with approximately 63 feet of frontage on Broadway and 90 feet along 19th Street, providing strong presence along one of Oakland’s most active commercial corridors
Offering Summary
Price: $3,600,000
Rentable Area: ±11,800 Square Feet
Price Per Square Foot: $305 psf
Occupancy: Delivered Vacant
FOR MORE INFO CONTACT:
Tom Southern
tom@chromataRE.com
C: 510.220.6336
Jamie Flaherty-Evans
jamie@chromataRE.com
C: 510.334.8606

